Our Services
SERVICES
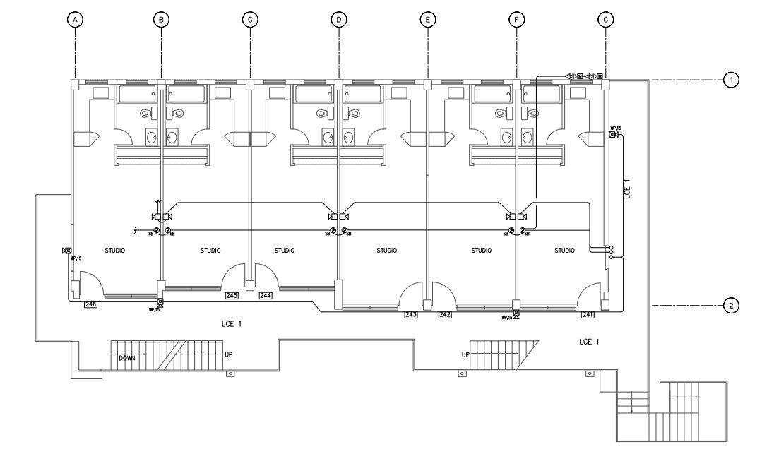
In all our work, we ensure complete submittals of documentations and a professional CAD plan for the system that you require.
We can provide you with the solution to your outsourcing needs, may it be fire detection systems, security, access, CCTV, or other auxiliary systems. Whether it’s a solution for overworked staff, or as your steady drafting firm, there is no job too small.
- Fire Alarm and Detection System
- CCTV System
- Nurse Call
- VESDA
- Access Control System
- Mass Notification System
- Public Address System
- FM 200
- kitchen hood
- Quantity takeoff
INCLUSION OF OUR WORK
We ensure complete documentation submittal and a professional CAD plan for the system that you require. We offer a very competitive price point with first-class quality of work.
- Cover Page
- Input / Output Matrix
- Legends, Symbols, and Notes
- Material List
- Specification
- Shop Drawings
- Wiring Details
- Voltage Drop and Battery Calculations
- System Floor Plan
- Device and Miscellaneous Details
Previous Projects
NICET Stamped Drawings are available upon request (Up to Level IV). Below are some of the projects we have helped complete:
- BBH Young Street Renovation (Panic Alarm System)
- Guam Regional Medical City, Dededo, Guam (Fire Alarm System with Voice Evacuation and Firefighter's Telephone)
- Bay Port Community, Fort Walton Beach
- ARFF Facility Improvements at Hilo International Airport (Public Address System)
- Repair AMC Passenger Terminal (Fire Alarm and Mass Notification System)
- Communications Facility (Bldg. 3385) (Fire Alarm and Mass Notification System and Air Sampling Smoke Detection System)
- Oaks Golf Clubhouse Restaurant, Nas, Pensacola, Florida
- Ladera Towers, Mangilao, Guam (Fire Alarm System)
- Guam Regional Medical City, 1st Floor MRI Equipment Suite, Dededo, Guam (Air Sampling Smoke Detection System)
- Nissan Showroom, (Fire Alarm System)
- Barton Academy for Advanced World Studies, Mobile, Alabama
- Guam Naval Hospital, Marianas Islands, Guam (Fire Alarm and Mass Notification System)
- Catalyst/Baptist Health Freestanding ER, Navarre Beach, Florida
- Dorm 19 - Building A & B, Eglin Air Force Base, Florida
- AIEA Intermediate School Campus Fire Alarm Upgrade (Fire Alarm System)
- Roosevelt High School ADA Transition (Assistive Listening System)
- FY13 MCON P-904 MV-22 Hangar & Infrastructure (Fire Alarm and Mass Notification System)
- ARFF Facility Improvements at Hilo International Airport (Master Clock System)
- Suite 150−Greenleaf Foods Test & Presentation Kitchen
- All Family Dental And Braces
- Chicago Ridge Office Bldg.
- Des Plaines Theater
- Venture One Real Estate At 1850 Greenleaf Avenue









